74ft x 41ft Ground Floor Hospital Plan & Basement Shop Layout | AutoCAD DWG File
Description
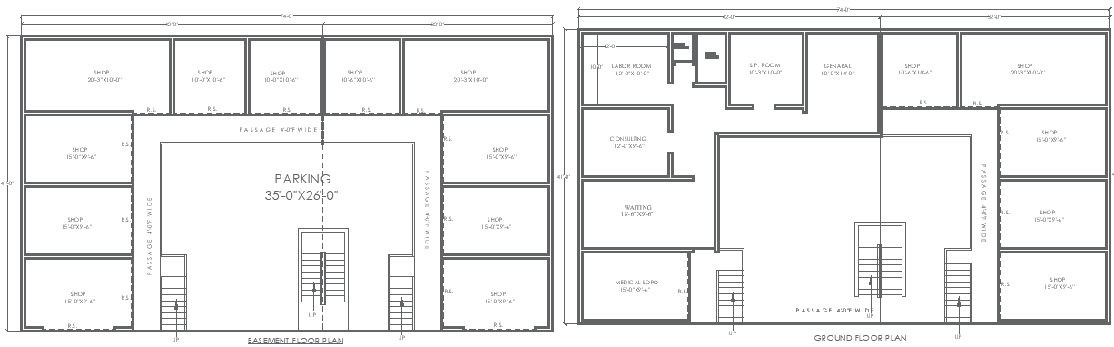
This 74ft x 41ft ground floor hospital plan and basement shop layout includes a detailed AutoCAD DWG file. The design features essential facilities such as a waiting area, consulting rooms, a labor room, bathrooms, and an S.P. room, along with a medical shop for convenient access to healthcare products. The basement layout incorporates parking and a passage, ensuring smooth traffic flow and accessibility for patients and visitors. This comprehensive design is ideal for architects, healthcare planners, and business owners seeking an efficient space for medical and retail services. Download the DWG file to explore the full layout and its functionalities.

Uploaded by:
Eiz
Luna

